Register your interest
Edenlife Margaret River is magnificently located:
- just 2kms from all the amenities and facilities of the town centre
- within 10kms of world famous beaches
- renowned vineyards & fine dining within 10kms
- golf course within 8kms
Then within the Edenlife Margaret River community, there’s your brand new low maintenance home, a resort style clubhouse and all the facilities you’d expect at a 5 star resort – for the private use of Edenlife residents.
What’s not to love?

Community Facilities
Every Edenlife community features a modern clubhouse with all the amenities needed to cater for the active and social needs of their residents.
The clubhouse is the social hub of the community and houses facilities like an indoor heated swimming pool, gymnasium, private cinema, billiards/darts room, arts & crafts room, library & internet kiosk plus a main hall with seating, dance floor, commercial kitchen and servery.
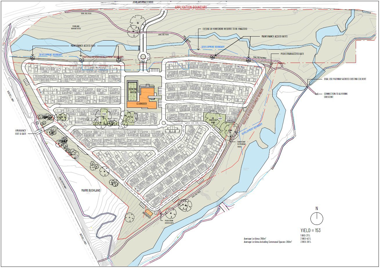
Masterplan

Have a question on Margaret River?

