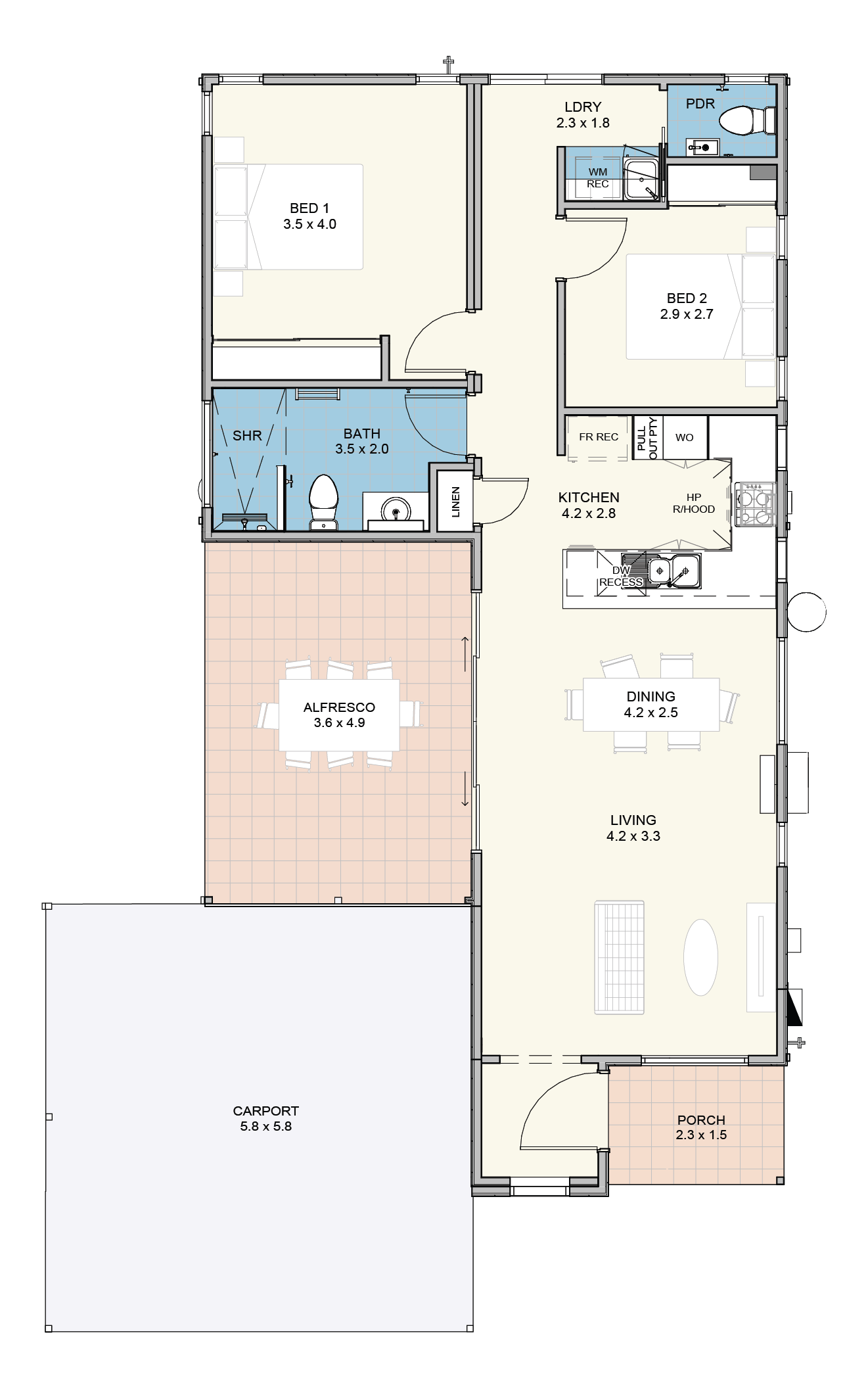
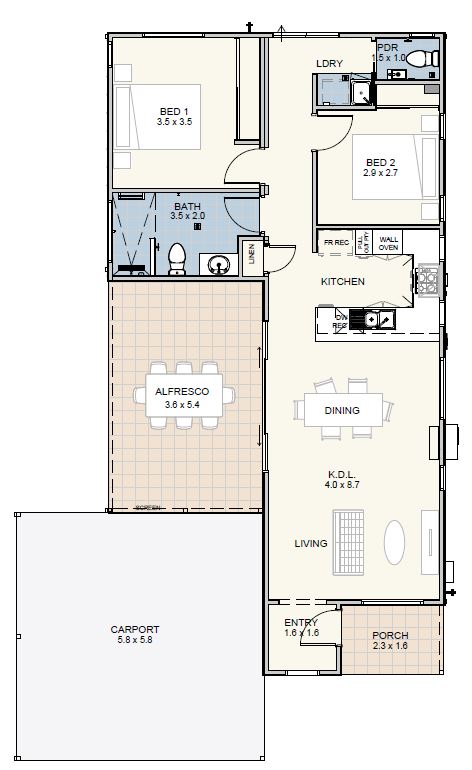
Lot 91 – The Peppermint
- Home
- Homes For Sale
- Lot 91 – The Peppermint
Bedrooms: 2
Bathrooms: 1.5
Carport: 2
Size: 82sqm
Enquire now to secure this quality, low maintenance home.
Home Features
Full internal & external painting
Floorcoverings
Window treatments
Landscaping & reticulation to front garden
Split system air conditioning to living
Fully fenced
Upgraded tapware throughout
Upgraded to an induction cooktop
Ceiling fan to Bed2
Wall niche to shower

Make Lot 91 – The Peppermint yours
Have a chat with Norm on 0403 626 556
Email Norm
"*" indicates required fields





