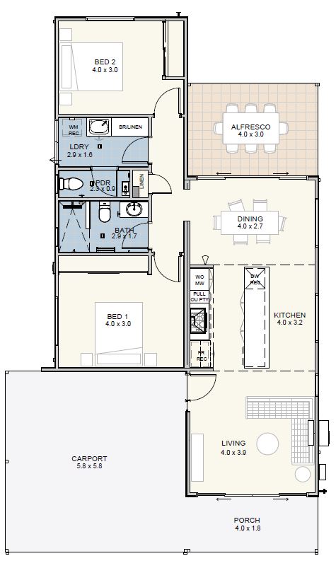
Step into The Mallee, a stylish 2 bedroom, 1.5 bathroom home that offers the perfect balance of comfort and low maintenance living without compromising on comfort or style.
Mallee
- Home
- Homes For Sale
- Mallee

Carport Size: 34sqm
Alfresco Size: 13
Porch Size: 8sqm
Enquire now to secure this quality, low maintenance home.
Home Features

Make Mallee yours
Have a chat with Norm on 0403 626 556