Edenlife Byford November Update

Project Update
Site works at our newest community are underway, bringing the Edenlife lifestyle one step closer to the Perth metro area. Read the full update here.

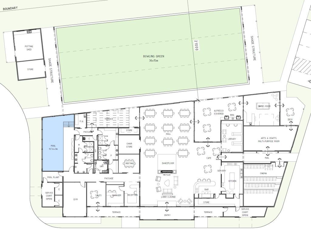
Clubhouse design
At the heart of each Edenlife community is the clubhouse – the central hub that has spaces for social events, quiet contemplation and maintaining your fitness.
We thought we’d share a sneak peak of the current design of the magnificent Byford clubhouse. Please note that the design is not yet finalised so the end product may differ from that shown here.

Nesting of Black Cockatoos
An unfortunate aspect of development is the reduction in habitat for native wildlife in the area. As a responsible developer, and with an architect committed to environmental sustainability and preservation of the natural environment, we seek to retain a proportion of mature native trees that already exist onsite.
One of the first tasks of development is to engage an arborist to complete a thorough tree survey of the site. This process identifies native and introduced flora, the condition of each tree and the importance of the tree to the native fauna of the area. This forms the basis of which trees can be retained, but ultimately the decision to retain or remove a tree depends on the condition of the tree and any potential danger it may pose to the safety of people (ie. from falling limbs).
Unfortunately, with the reduction in the number of trees, nesting sites for the local Black Cockatoo population has been affected. To replenish nesting sites for these magnificent birds, Edenlife are working closely with Landcare SJ Inc, to identify appropriate locations within the bush land corridors to the eastern and southern boundaries of the site to install their Cockatubes.
Designed by Landcare 15 years ago, a Cockatube is an artificial nesting box that provides the cockatoos with an alternative that replicates as closely as possible the conditions they would choose in their natural habitat. Cockatubes have been used extensively throughout south WA by many government agencies, environmental groups, schools, universities and private landowners for over 10 years.
Site reservations & masterplan
Norm Jones, Byford sales manager, is very busy with many sites already reserved in Stage 1 and some in Stage 2.
Norm can meet with you in his local office nearby the development at 155 Mead Street, Byford or is happy to come to your place (providing a cuppa tea is part of the deal 😉).
Our new Byford clubhouse, facilities and homes are very similar to our thriving Australind community. Many interested parties are meeting with Norm at our Australind site to see and feel what is coming to Byford.
The next tour is 7th November, followed by the 21st November, these visits have proved invaluable to new buyers.
Call or email Norm for a chat or to organise a time to visit Australind, 0403 626 556 or njones@edenlife.com.au.

Development timeline
At this early stage of development, it’s difficult to provide accurate dates for completion and availability of the first homes, however the community is currently on track to be ready for delivery of the first homes in mid 2025 (subject to factors outside Edenlife’s control such as weather conditions and , availability of trades).

Community entry boulevard
Bennett Boulevard will be the grand entry into the Edenlife Byford community.
Lined on either side by generous walkways and landscaped with custom screens & fencing and a range of waterwise native plants, you will instantly feel the peace as you enter.


A social calendar to look forward to
Edenlife communities are about choice – the choice to do as much or as little as you like. The wide range of resort style facilities for your use to keep active and socially connected is only half the story.
Enter the other half…..the social calendar!
As the community grows, so to does the different interest groups that form and create events for the enjoyment and benefit of residents. Take a look at the latest social calendar from Edenlife Australind.


